Paul Santy
Réaménagement global d’un appartement.
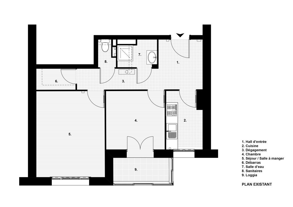
En mai 2020, L. acquiert son premier appartement dans le 8ème arrondissement de Lyon. D’une surface de 45 m², ce bien semble figé dans les années 70. Tout est à repenser et à moderniser.
Le budget serré de la cliente nous a incité à conserver les emplacements des zones d’eau, les sols ainsi que les menuiseries. Nous avons donc joué de malice pour pousser les murs, ouvrir l’espace et le rendre accueillant pour cette trentenaire dans la vie active.



L’espace de vie, aujourd’hui grandement ouvert, contient une cuisine, un espace pour manger, un salon qui se prolonge par la loggia. Dans la chambre, très spacieuse, se logent un espace dressing, et un bureau, besoin exprimé par la cliente avec la généralisation du télétravail.


