Les 4 vents
Projet en cours
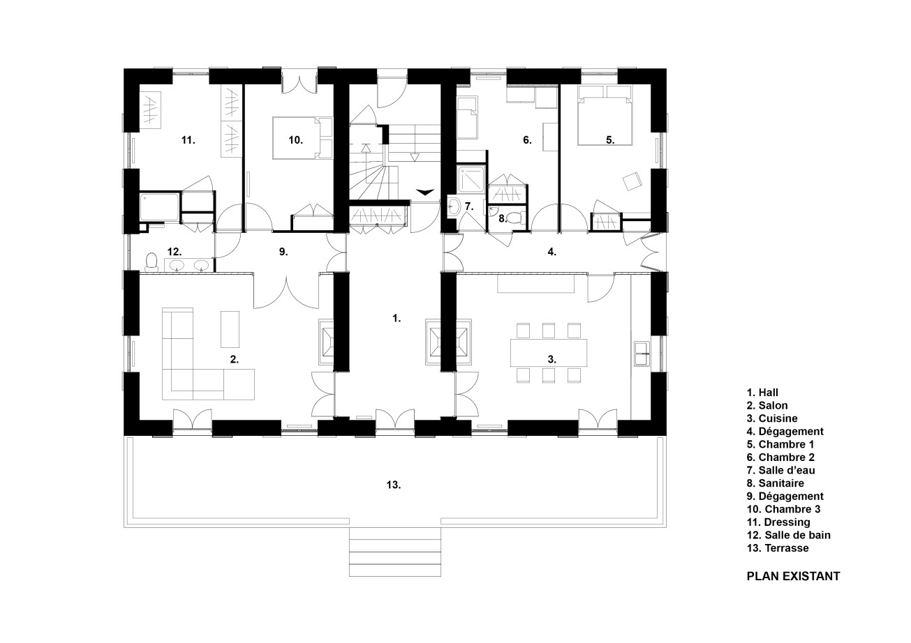
Réaménagement des espaces nuit d’un appartement haussmannien à Fontaines sur Saône.
S. et Y. sont propriétaires d’un spacieux appartement de 160 m² au rez-de-chaussée d’une maison bourgeoise donnant sur un parc arboré.
L’arrivée de leur second enfant les amène à repenser intégralement les espaces nuit de leur logement.
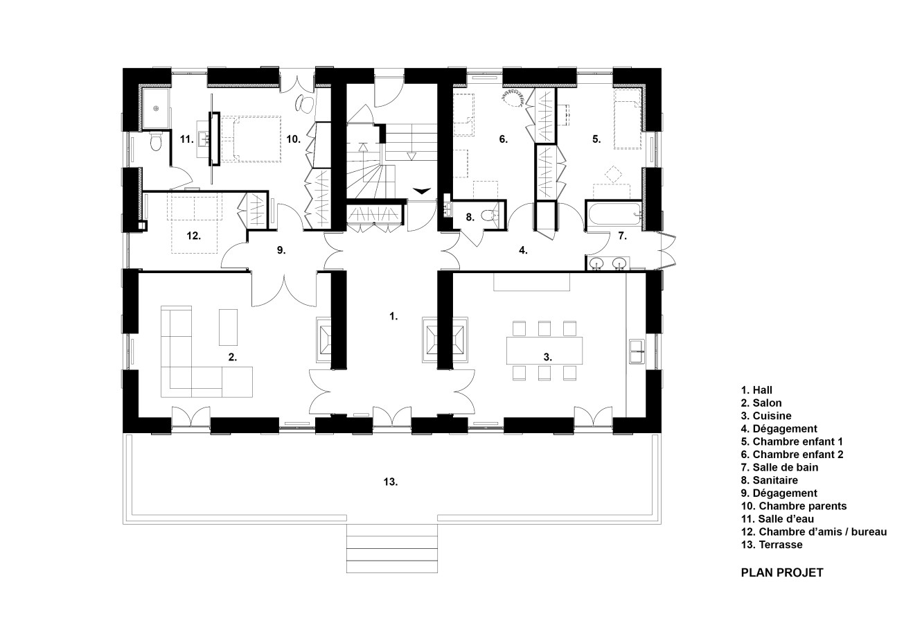
D’un côté, une suite parentale est créée avec chambre de 16 m², dressing sur mesure intégré et salle d’eau lumineuse, à laquelle s’ajoute un bureau possiblement transformable en chambre d’appoint.
De l’autre, l’espace devient le territoire des enfants, avec deux grandes chambres, et une salle de bain tournée vers le jardin.
La ligne directrice du projet s’articule autour de la conservation du cachet de l’ancien, tout en apportant modernité et fonctionnalité.







