Bureaux Alamo et Duval Projet en cours / Photographies à venir
En collaboration avec Flexof
Rénovation complète de bureaux à Lyon.
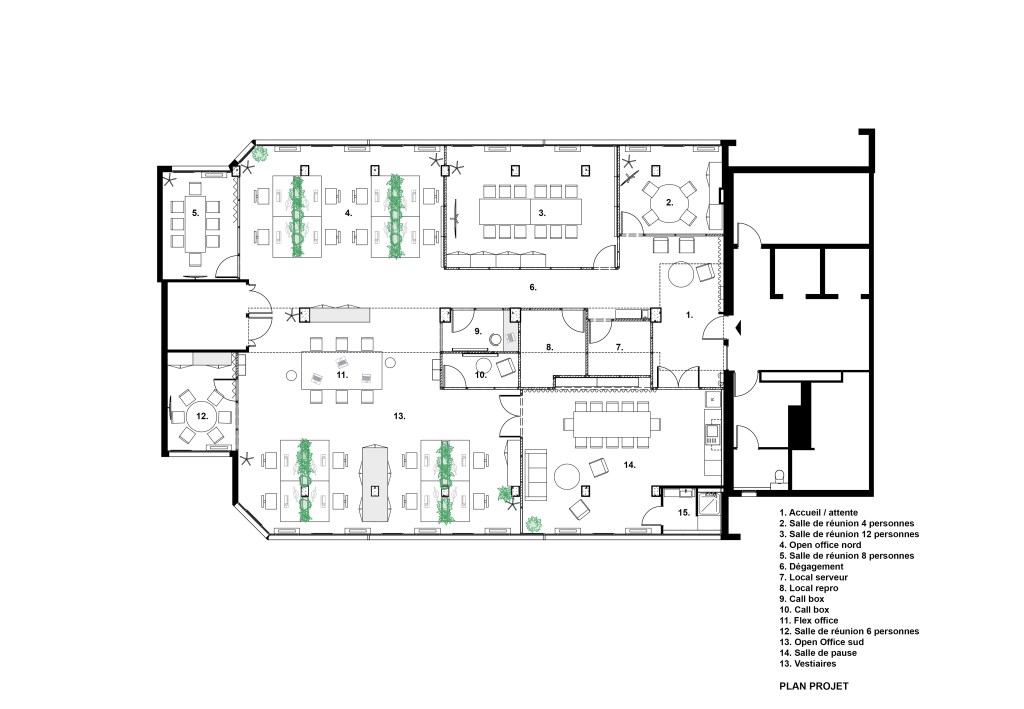
C’est dans une démarche 100 % réemploi que ce projet de réaménagement global de bureaux a été pensé. Les clients, convaincus par notre approche, nous ont fait confiance pour rénover cet espace de 300 m². Leur demande initiale se portaient sur trois points principaux : avoir une salle de pause avec un point d’eau, créer un vestiaire pour pouvoir se doucher après les sessions de sport entre midi et deux, et trouver l’espace suffisant pour une salle de réunion supplémentaire
Avant travaux, le plateau est un plateau de bureaux classique, avec des espaces très cloisonnés au nord, et un grand open space au sud. L’aménagement est peu adapté à la manière de travailler des équipes actuelles. Les box vitrées au centre du volume et les cloisons au nord sont entièrement déposées pour créer trois nouveaux espaces distincts : un open space au nord, un flex office pour le travail des collaborateurs nomades au centre, et un open space au sud.
Tout ici, y compris le mobilier est de seconde main ou de réemploi. Les cloisons vitrées déposées in situ sont réutilisées pour créer deux phone box, d’autres cloisons récupérées par Flexof sur un autre chantier sont réinstallées pour refermer deux salles de réunion et la salle de pause. Dans celle-ci, la cuisine de l’ancienne salle de pause est réadaptée pour l’ajout d’un évier.
Pour conserver un certain degré d’intimité, les bureaux sont séparés par des bacs fabriqués à partir de bois déclassés par les apprentis de l’atelier d’insertion en menuiserie du Foyer Notre Dame des Sans Abris, et remplis de plantes, elles-mêmes issues de déconstruction, venues de la Société Protectrice des Végétaux.
Une démarche engagée dont l’ensemble de l’équipe est très fiers !



