Giraud
Projet en cours / Photographies à venir
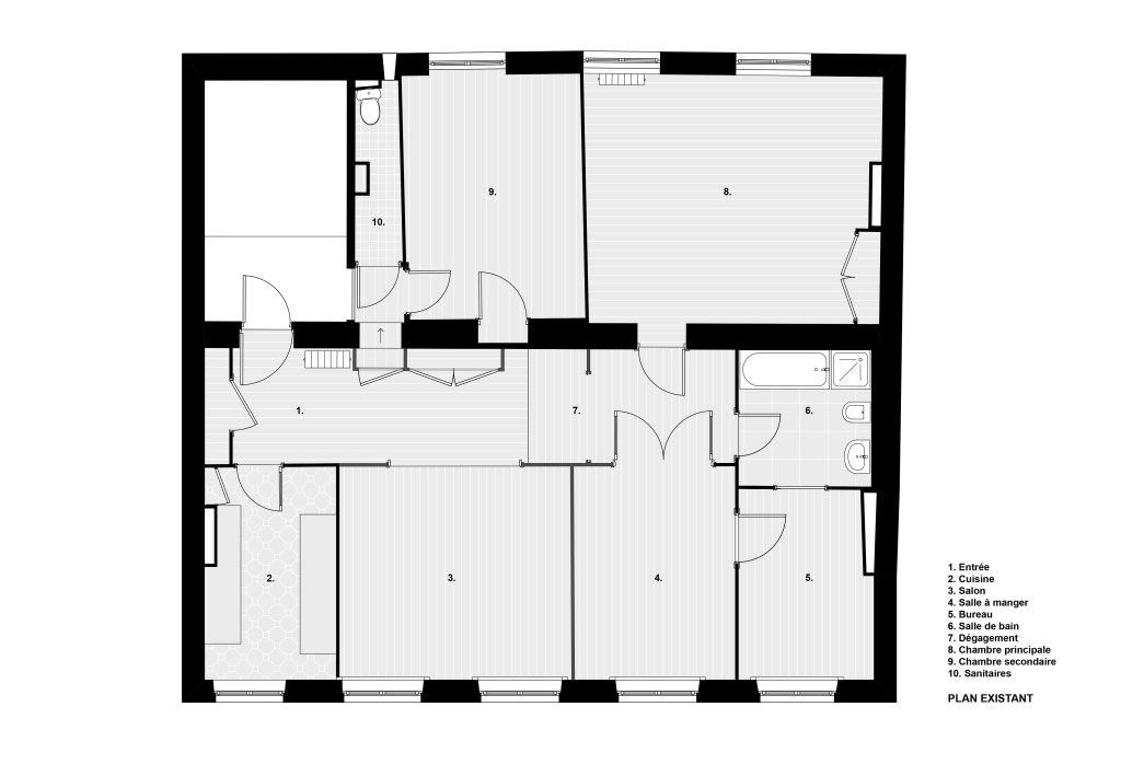
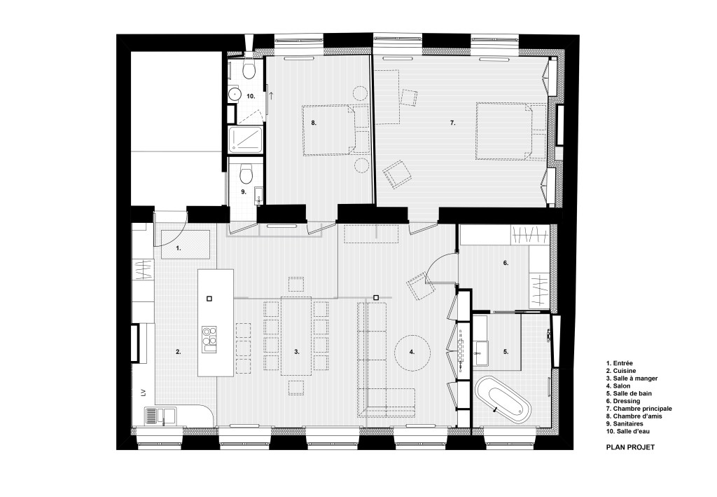
Rénovation complète d’un appartement à Lyon.
C’est le coup de foudre pour M. et S. dès la première visite de cet appartement traversant à la vue dégagée. Il faut dire que les lieux ont beaucoup de charme, de très beaux volumes, des larges fenêtres apportant un maximum de lumière, des moulures bien conservées et un parquet massif en chêne.
L’espace est entièrement décloisonné afin de créer un grand espace de vie, avec plafond à la française, regroupant une entrée, une cuisine autour d’un îlot central, une salle à manger et un salon, exposés au sud. Tout comme la salle d’eau royale, avec sa douche à l’italienne et sa baignoire îlot, vue sur le paysage. Les deux chambres sont logées, au calme, en retrait de la rue. Dans la chambre principale de plus de 20 m² est conçue une tête de lit bibliothèque pour contenir la collection de bande dessinée. Une chambre d’amis, avec une salle d’eau privative, vient compléter l’aménagement.



