Cité Dupont
Projet terminé / Photographies à venir
Rénovation complète d’un appartement à Paris.
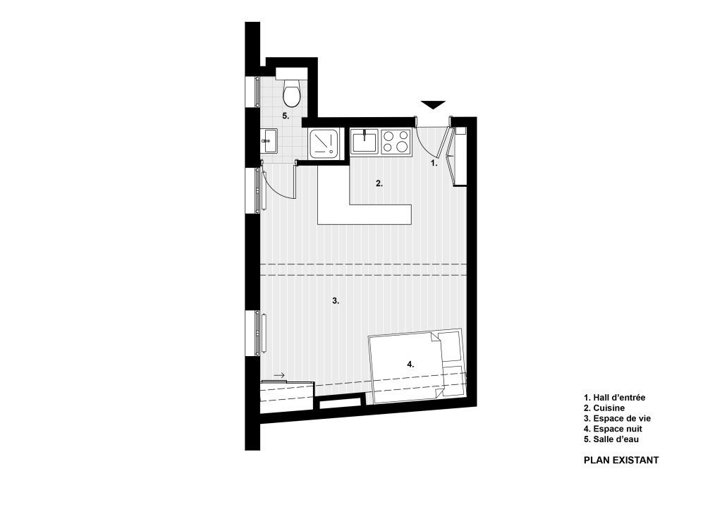
En septembre 2022, A. et C. acquièrent un studio de 25 m² dans une impasse calme du 11ème arrondissement de Paris. L’objectif est clair: rénover entièrement cet appartement, en faire un cocon douillet pour leur fils venu étudier dans la capitale, et leur permettre d’avoir un pied à terre pour leurs week- end parisiens.
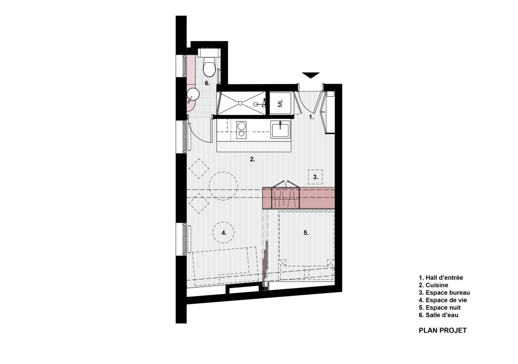
Afin de minimiser les coûts, les pièces d’eau sont conservées à leur place. Côté salle d’eau, la douche est agrandie, un meuble vasque sur mesure s’étend sous la fenêtre, le tout est entièrement rénové dans des tons clairs. Côté cuisine, nous optons pour une cuisine linéaire offrant tout le confort d’une grande dans un espace réduit.
Un ensemble menuisé sur mesure est conçu autour de l’espace nuit, comprenant un coin bureau, un placard penderie, et une bibliothèque. Pour créer de l’intimité, un claustra coulissant peut refermer le volume, tout en laissant passer la lumière naturelle.


