Maréchal Foch
Projet en cours
En collaboration avec AS Maîtrise d’Oeuvre
Rénovation partielle d’une maison à Sainte Foy Les Lyon.
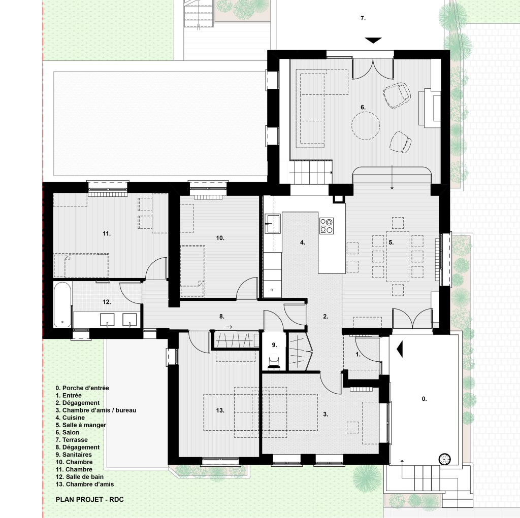
A. et S. achètent en 2020 cette maison sur deux niveaux, entourée d’un grand jardin arboré. Si globalement la distribution des espaces correspond aux besoins de cette famille avec deux enfants, ils pressentent que quelques aménagements et modifications seront nécessaires afin de s’adapter complètement à leurs goûts et leur manière de vivre.
Ainsi, au rez-de-chaussée, la cuisine est déplacée pour devenir un espace ouvert vers la salle à manger, le salon et le jardin; tandis que la pièce récupérée se mue en bureau, et chambre d’amis d’appoint. Les travaux sont aussi l’occasion de remplacer les menuiseries extérieures, de retravailler sur les sols, d’isoler les murs périphériques, de créer une bibliothèque sur mesure pour le salon et de donner un coup de frais en terme de décoration ! Au sous sol, notre intervention se concentre principalement sur la chambre parentale, mal isolée, et vieillie pour laquelle nous offrons une seconde jeunesse.
Rendez-vous en mai 2023 pour voir le résultat !





