Jarnioux
Projet terminé / Photographies à venir
Rénovation complète d’une maison à Pouilly-Le-Monial, Porte des Pierres Dorées.
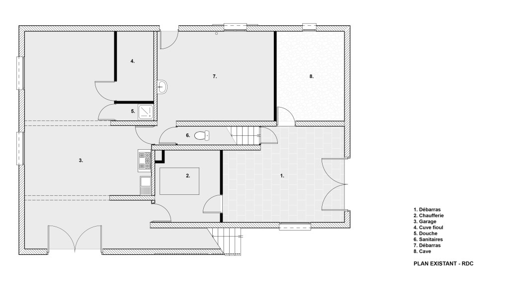
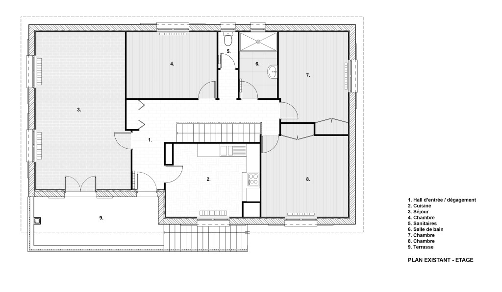
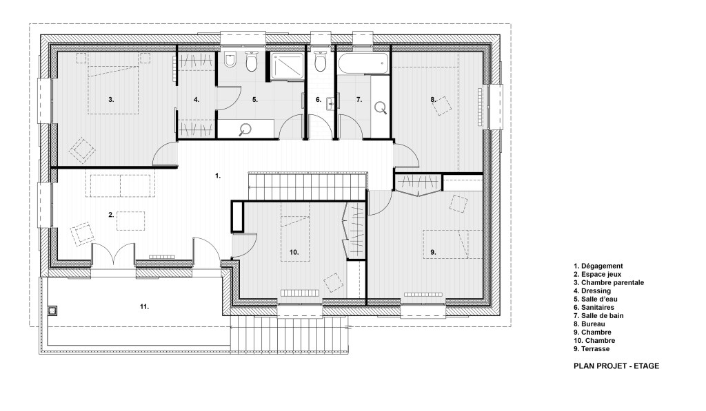
Après des années passées en région parisienne, N. et C., posent leurs bagages dans ce petit village. Ils jettent leur dévolu sur une maison typique des années 70 pour s’installer en famille. Si l’immense jardin ne demande aucune modification particulière, l’intérieur de la maison est quant à lui resté dans son jus, et mérite un grand chamboulement. Le rez-de-chaussée, autrefois garage et local technique, est entièrement remanié pour devenir un espace de vie, une cuisine, une buanderie, et une chambre d’amis. L’ensemble est tourné vers l’extérieur pour profiter enfin de la vue, et de l’accès direct au jardin. L’étage est remodelé, recloisonné afin de créer une salle de bain supplémentaire, un bureau, une chambre et un espace de jeu pour les enfants.
C’est dans une démarche globale de réemploi des matériaux qu’a été pensée la rénovation complète de cette bâtisse. Du sol au plafond, la grande majorité des matériaux et équipements proviennent d’anciens chantiers, de surplus de stocks, de showrooms, d’invendus…
Pleinement convaincus de l’évidence de cette approche vertueuse dès notre première rencontre, N. et C. ressortent de ces travaux, confortés dans leur conviction : Le réemploi, c’est possible et c’est l’avenir !





