Paul Chenavard
Rénovation et réaménagement complet d’un plateau pour le transformer en trois appartements.
Situé au cœur du 1er arrondissement de Lyon, cet ancien hôtel de près de 200 m² est laissé à l’abandon depuis de nombreuses années. Monsieur et Madame X viennent de l’acquérir, et souhaitent le réhabiliter afin de créer trois appartements distincts.
Deux d’entre eux seront destinés à de la location (un T1 et un T2), tandis que le dernier sera conservé par les propriétaires pour y vivre (un T3).

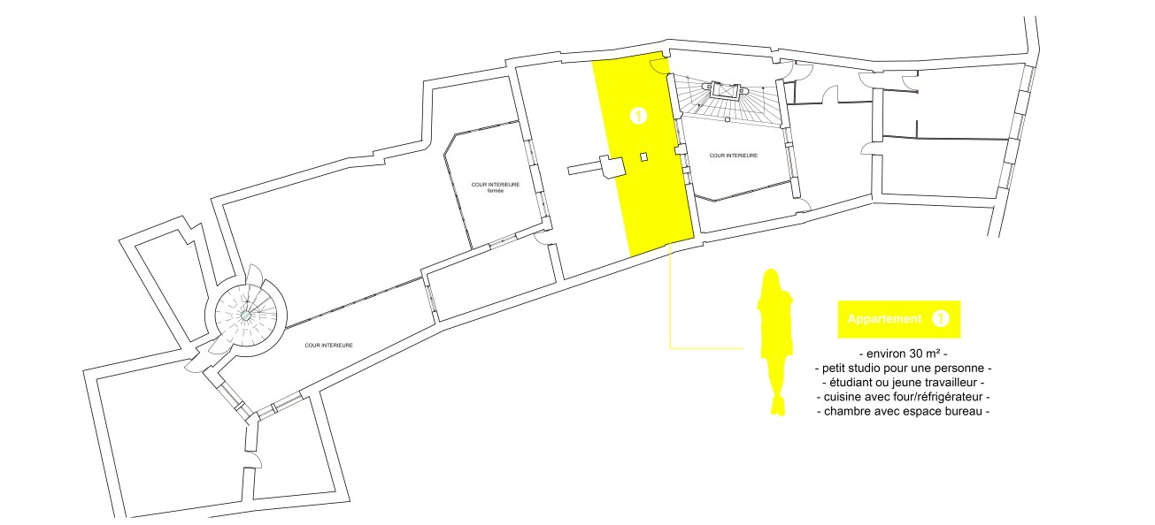
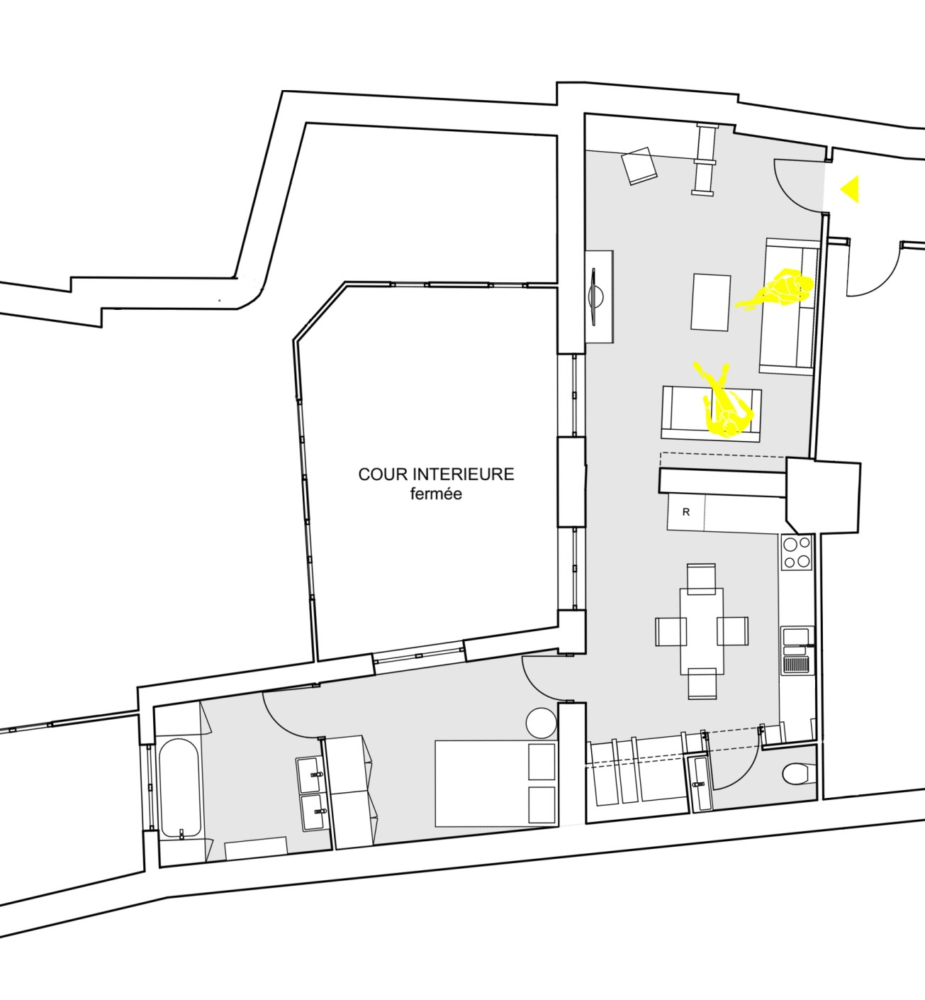
Appartement 1
Le studio, d’environ 30 m², s’articule autour des différentes fonctions nécessaires à la vie d’un étudiant ou d’un jeune travailleur: espace cuisine, salon, bureau, salle d’eau, et espace nuit. Dotée de parois coulissantes, la chambre peut être ouverte sur le reste du salon, afin d’agrandir visuellement la taille du studio. Les choix de couleurs et de matériaux participent également à la sensation d’espace.





Appartement 2
Le T2 partage son entrée avec le studio. Il se déploie le long d’une cour intérieure. Entrée, salon, cuisine, chambre, et salle de bain se suivent en enfilade, avec pour idée principale de profiter au maximum de la lumière naturelle. Les fonctions sont donc regroupées en périphérie de l’appartement, afin de laisser les espaces devant les fenêtres libres à la circulation.






Appartement 3
Le dernier appartement que les propriétaires conserveront pour leur propre usage mesure une superficie d’environ 85 m².
Monsieur X travaillant à domicile, l’accent a été mis sur l’idée qu’une fois la journée terminée, l’appartement puisse redevenir le lieu de vie de la petite famille.
Les propriétaires souhaitent pouvoir profiter d’un grand espace de vie, tout en préservant les espaces nuit, des éventuelles nuisances sonores. Une zone tampon fera donc le lien entre les chambres et le salon / cuisine.
Des portes coulissantes viennent rythmer le long mur de l’espace de vie, derrière elles, on accède au couloir qui mène à l’espace nuit, au bureau, à la salle de bain, et aux sanitaires.







