Bâtiment administratif
Université de Xi’An (Chine)
Réalisé pour Blond & Roux Architectes
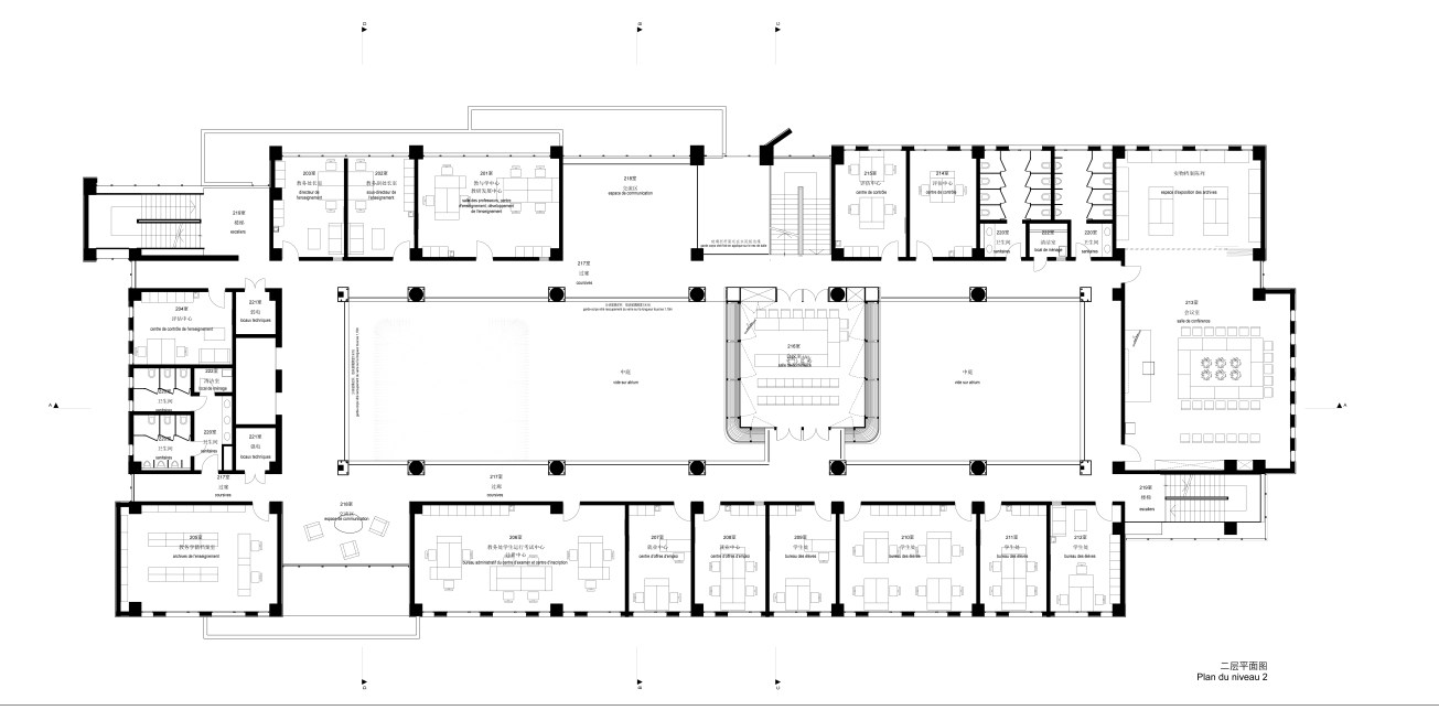
Aménagement intérieur d’un bâtiment administratif de l’université de Xi’An.
L’Université Eurasia de Xi’an en Chine, cherche à se développer. La collaboration avec l’Agence Blond & Roux Architectes pour l’aménagement d’un bâtiment administratif de 7 000 m² est un premier pas dans leur volonté de se tourner vers l’Europe. Sur cinq niveaux, autour d’un atrium central, une coursive dessert les différents bureaux administratifs. Trois « boîtes » suspendues font office de salles de réunion. Elles sont au cœur de l’espace, conçues comme des nids en bois, laissant à la fois traverser la lumière tout en se préservant des regards.






